New - 13 Hours Ago
$958,900
Active
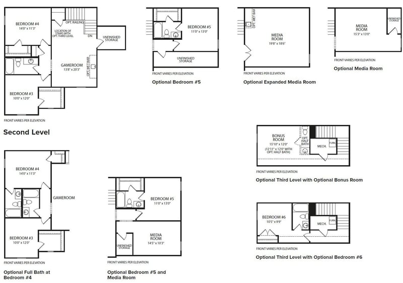
4
Beds
4
Baths
3115
Sqft
0.56
Acres
7403 Twill Heights Loop, Fairview, TN 37062
MLS#: 3136936






$928,900
ACTIVEMiranda Rosenbaum, 6157125990, Drees Homes
Realtracs MLS, MLS#: 3123503


Miranda Rosenbaum, 6157125990, Drees Homes
Realtracs MLS, MLS#: 3123503
