New - 4 Hours Ago
$740,900
Active
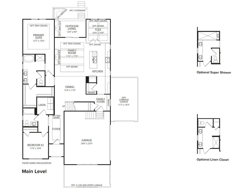
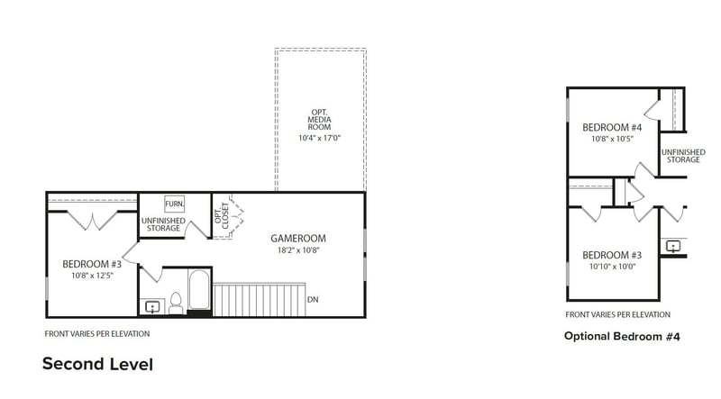
4
Beds
3
Baths
3100
Sqft
0.35
Acres
7669 Hatcher Heights Dr, Fairview, TN 37062
MLS#: 3145460




$709,990
ACTIVEMiranda Rosenbaum, 6157125990, Drees Homes
Realtracs MLS, MLS#: 3145449


Miranda Rosenbaum, 6157125990, Drees Homes
Realtracs MLS, MLS#: 3145449
