New - 21 Hours Ago
$777,900
Active
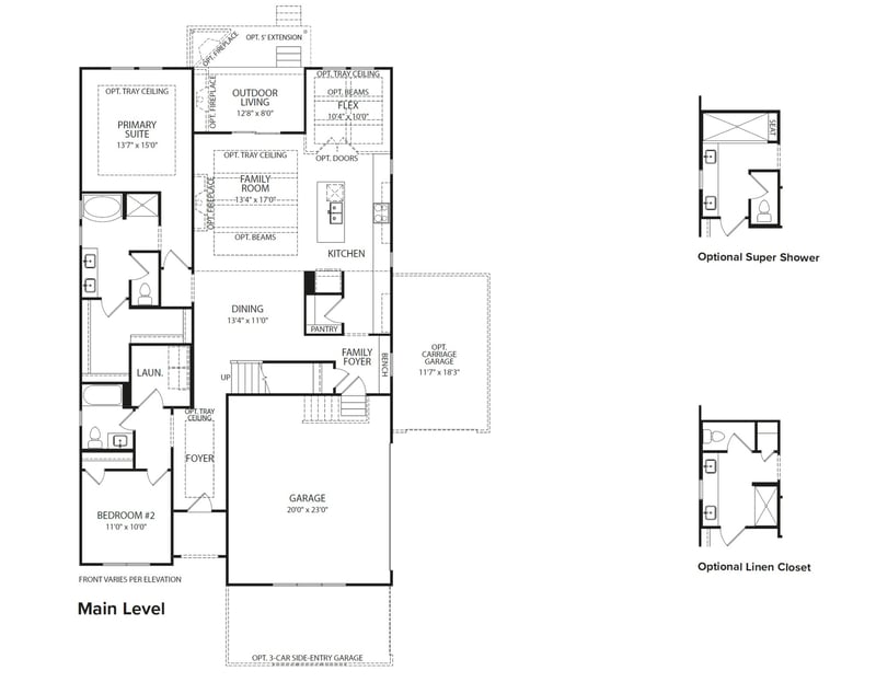
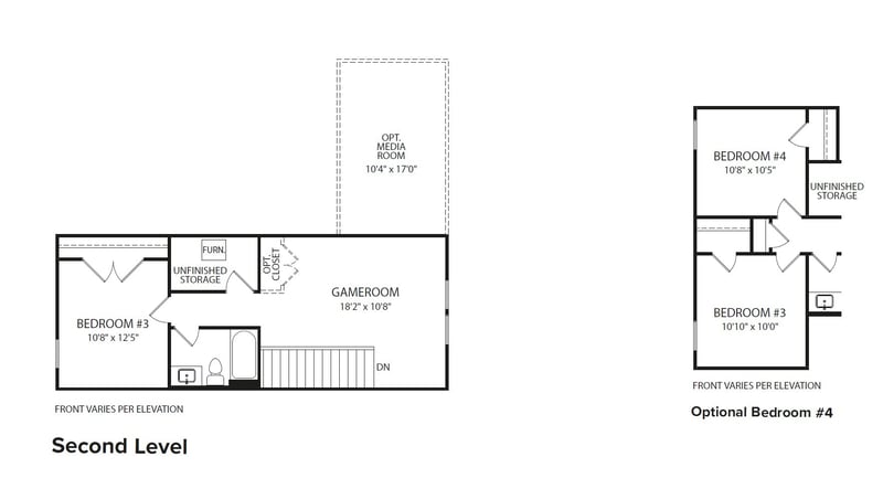
4
Beds
3
Baths
2750
Sqft
0.35
Acres
7689 Hatcher Heights Dr, Fairview, TN 37062
MLS#: 3112399




$777,900
ACTIVEMiranda Rosenbaum, 6157125990, Drees Homes
Realtracs MLS, MLS#: 3112376


Miranda Rosenbaum, 6157125990, Drees Homes
Realtracs MLS, MLS#: 3112376
